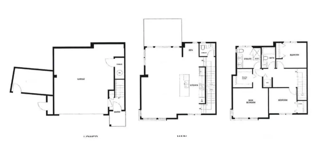
Property Type
Townhome, 3 Storey
Parking
2 garage, 2 parking
MLS #
R3044432
Size
1532 sqft
Basement
None
Listed on
-
Lot size
-
Tax
$3,870.25 /yr
Days on Market
-
Year Built
2023
Maintenance Fee
$440.87 /mo
